“Soho House is trying to steal our view”. Legends Brighton releases statement on new planning application from the private members’ club
“A high foliage permission is hidden within the application that will take away the Camelford and Legends Terrace view COMPLETELY. ”
Soho House is trying to steal our view with a new planning application! We waited over five years to get this back (and still await the removal of the ugly Heras fencing) but now they want to take it away forever!
A high foliage permission is hidden within the application that will take away the Camelford and Legends Terrace view COMPLETELY.
At the end of 2015 after a long planning debate, the original Soho House application BH2015/02443 was approved with Condition 16. This condition was imposed to address the issue that the two new Soho House Private Members Club buildings were to be built above the cliff and would block the view of the Palace Pier from Marine Parade.
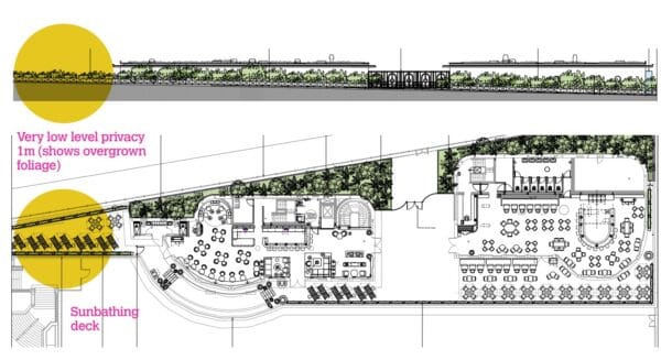
Condition 16 states: A visual gap of 10 metres shall be permanently maintained between the two permitted built structures on the upper tier level. The gaps are to remain permanently free of any visual obstruction.
We need Brighton & Hove City Council to respect and defend Condition 16 There is no way that the proposed fence and shrubs respect Condition 16.

This is also a direct contravention of the Brighton & Hove Local Plan 2005 Policy QD4 Strategic Impact which states ‘In order to preserve or enhance strategic views, important vistas, the skyline, all new development should display a high quality of design.
‘Development that has a detrimental impact on any of these factors and impairs a view, even briefly, due to its appearance, by wholly obscuring it or being out of context with it, will not be permitted’.
Furthermore, no mention is made of the tall planters and shrubbery i.e. stealth extension of their terraces/sunbathing deck at the lefthand side of the building (directly in front of Legends) that can be clearly seen in a new application. If the application is approved, we cannot stop them doing this.
WE MUST STOP IT NOW
Please register your objections no later than June 6 by CLICKING HERE
Ref: BH2023/00935
Be sure to mention the detritus on the roof too – all of which was added without consent!
Support independent LGBTQ+ journalism
Scene was founded in Brighton in 1993, at a time when news stories about Pride protests were considered radical. Since then, Scene has remained proudly independent, building a platform for queer voices. Every subscription helps us to report on the stories that matter to LGBTQ+ people across the UK and beyond.
Your support funds our journalists and contributes to Pride Community Foundation’s grant-making and policy work.
Subscribe today
Comments ()